Thermally insulated fire protection system; structures designed on the basis of the FR90 system feature fire rating for walls EI30, EI60, EI 90, EI120, and fire rating for doors EI30, EI60, EI90
- application: indoor and outdoor installations
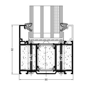
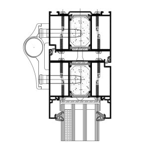
- installation depth: 90 mm
- symmetrically designed profile, inner chamber filled with gypsum infill elements (between thermal separation sheets) – for EI30; all chambers filled with gypsum – for EI60
- compatible with systems with the installation depth of 90 mm (STAR)
- possibility of using a triple glazing unit (glazing: 20 mm to 69 mm)
- option of panel infill (panel thickness 60 mm):
– mineral wool filed panels (Up = 0.57 W/m2K)
– gypsum filled panels - structures: single and double doors, fixed glazing
- maximum dimensions of the tested structure: 6000 x 3000 mm (fixed wall, single glass pane)
- maximum dimensions of single-leaf doors: 1650 x 2870 mm
- maximum dimensions of double-leaf doors: 3170 x 2870 mm
- single-point and multi-point door locks, electric door strikes, panic hardware
- cover plate hinges, roller hinges, Inox hinges
- solutions with and without thresholds
- door kick plates (high plinth block)
- option of air vent installation
- optimised profiles (one profile type for the door frame and leaf)
- quick and simple prefabrication (no processing of the glazing bar)
- acoustics – acoustic testing of double doors featuring fire rating EI30 and EI60 for indoor and outdoor installations: 39 to 47 dB
- a wide range of colours – RAL palette (Qualicoat 1518), texture colours, Aliplast Wood Colour Effect (wood-like colours), Aliplast Loft View – colours imitating stone surfaces (Qualideco PL-0001), anodised colour (Qualanod 1808), bi-colour
TECHNICAL SPECIFICATION
| SYSTEM | MATERIAL | DEPTH OF FRAME | DEPTH OF LEAF | GLAZING RANGE | TYPE OF WINDOWS | TYPE OF DOORS |
| FR90 fix | aluminium/polyamid | 90 mm | – | fix 20-69 mm | FIX | – |
| FR90 door | aluminium/polyamid | 90 mm | 90 mm | door 20-69 mm | – | single sash door, double sash door |
PERFORMANCE
| SYSTEM | THERMAL INSULATION UF* | AIR PERMEABILITY | WINDLOAD RESISTANCE | WATERTIGHTNESS |
| FR90 | Uf from 2,145 W/m2K | Class 4; EN 12207 | Class C1/B2; EN 12210 | Class 4A; EN 12208 |
*Thermal insulation is dependent on a combination of profiles and thickness of the filling










